Metamorph

Mariposa, CA | 2,962 SF

Not 40 miles from El Capitan and Higher Cathedral Rock, and a little farther to the Half Dome, Metamorph sits deep in the mountains at the outer reaches of Yosemite National Park. The name “Metamorph” is both a nod to the monarch butterflies after which its town, Mariposa, is named, and an homage to the various transformations undertaken by the land—on scales small and large, in years recent and long past—as man and nature have left their marks. In the mid-nineteenth century, prospectors rushed to the Mariposa region in a frantic hunt for gold, situated as it was at the south end of the California Mother Lode, and in the process they built up a bevy of booming towns, some of which—like Mariposa—stand to this day. Eventually interest in gold mining waned and industry turned to railroad construction, which then facilitated logging and hard-rock mining. All of this forever altered the mountain landscape. More recently, the Oak Fire of 2022 devastated the county for six weeks as it burned through over 19,000 acres of parched land and annihilated nearly 200 structures. The smoke could be seen for hundreds of miles. The house that stood on this property was among the casualties.

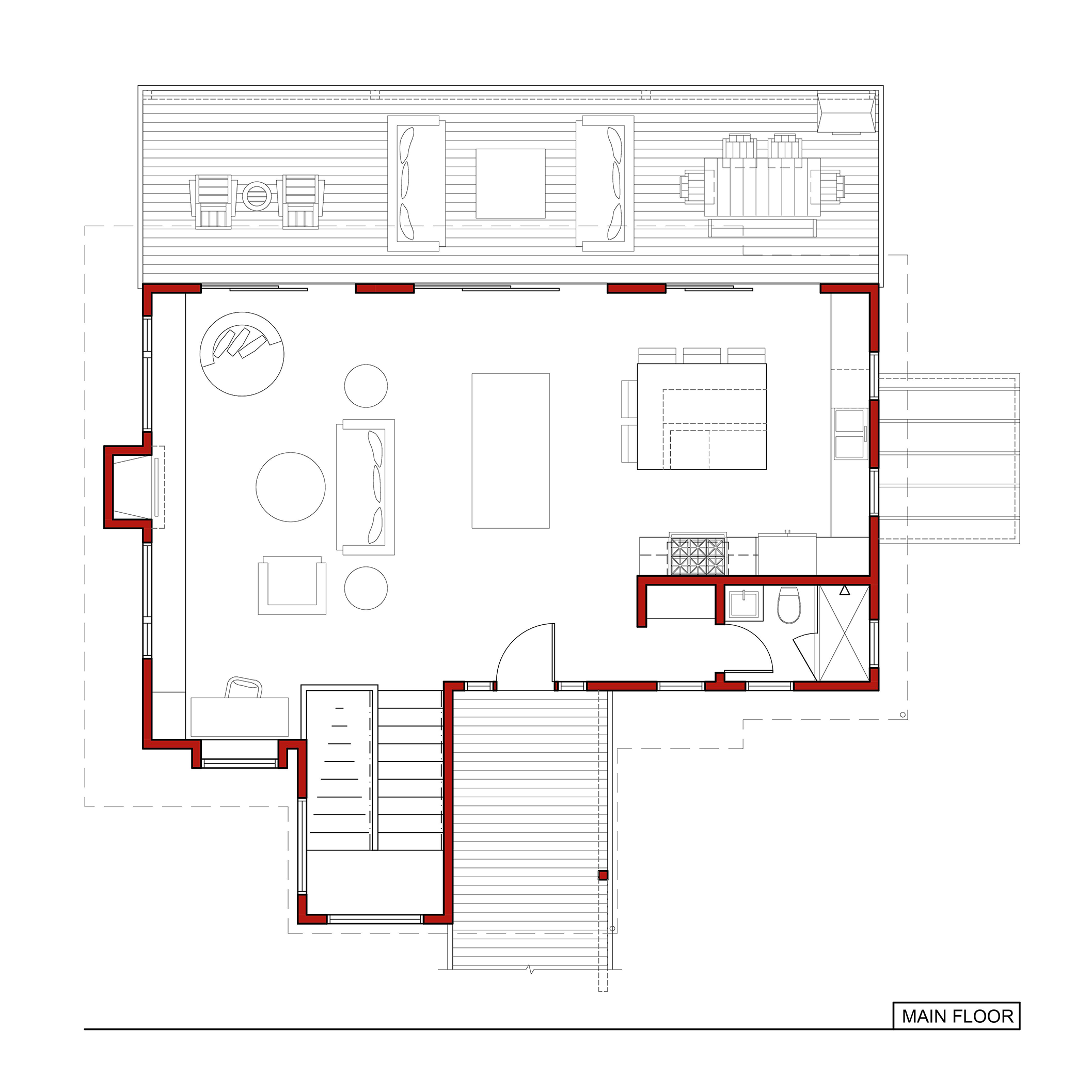
Like a butterfly remade from a caterpillar, this new home will stand proudly in place of the old. A dominant shed roof salutes the surrounding mountains, while secondary flat roofs maintain a simple and clean geometry. Ashy shou sugi ban siding makes a stunning palette alongside deep bronze box-rib metal siding and metal panel accents. The main floor, connected to the elevated parking pad via a bridge, is open and minimal with a spacious living room and workspace beneath the shed roof and a cozy kitchen, closet, and bathroom beneath the flat roof. A deck enhances the indoor-outdoor experience. Down the stair, which is housed in a compact, glass-filled tower, the lower floor holds the sleeping rooms. A master bedroom with an en suite and two guest bedrooms with an extra large shared bathroom all open directly onto the lower patio, where a firepit, hot tub, and outdoor shower can be enjoyed.

This project represents nothing if not resilience, as the site on which the new home will stand and the greater region it belongs to have bravely weathered the rapid geological, environmental and economic changes of the last two centuries. We trust that both new home and ancient land will continue to thrive and adapt to whatever changes the future has in store.

Metamorph is anticipated to complete construction in 2026.

Previous
Previous

Treehouse

Next
Next

The M-Frame